おすすめ物件情報
2026.02.02
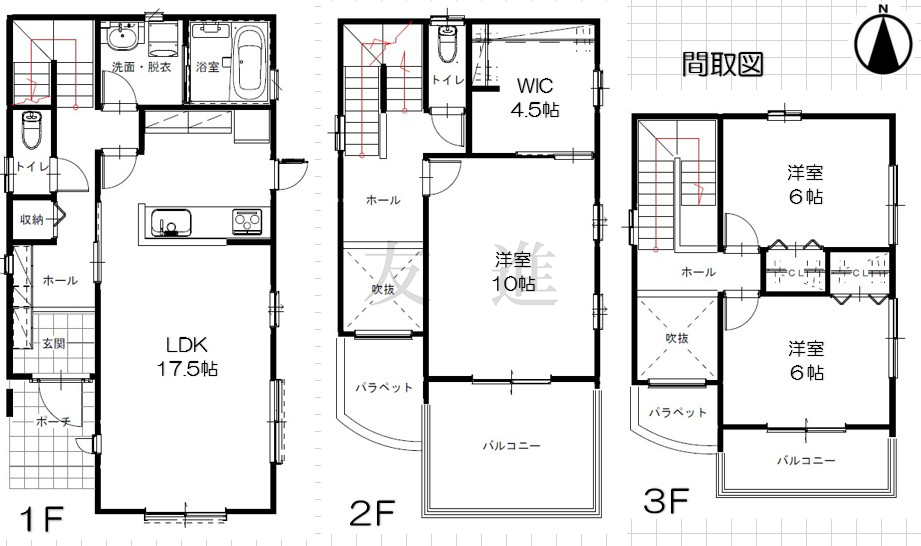
姫路市新在家3丁目(姫路駅)3階建 3LDK
所在地/姫路市新在家3丁目
交通/JR / 姫路駅 徒歩33分/神姫バス / 9分 南八代(停歩6分)
価格/2,980万円
間取り/3LDK+WIC
チェックポイント!
バス・トイレ
浴室暖房、オートバス、追焚機能、シャワー付洗面化粧台、温水洗浄便座、浴室に窓あり
キッチン
カウンターキッチン、システムキッチン、食器洗浄乾燥機、IHクッキングヒーター、2口コンロ
設備・サービス
全居室収納、ウォークインクローゼット、エアコン2台以上、シューズインクローゼット、床下収納、モニター付インターホン、ディンプルキー、防犯カメラ、全居室フローリング、上水道、下水道、都市ガス、プロパンガス、電気、エアコン、ワイドバルコニー、サンルーム、間接照明、照明器具、火災警報器(報知機)
閑静な住宅街で人気校区の新規物件!

間取り

お気軽にお問い合わせください
2026.02.02
揖保郡太子町竹広2区画1号地(網干駅)売土地
所在地/揖保郡太子町竹広字長金
交通/JR / 網干駅 徒歩約10分
価格/(区画1)1,430万円
用途地域/第一種中高層住居専用地域
建ぺい率/60%
容積率/150%
設備・条件/個別プロパン・公共下水・公営水道・関西電力
建築条件なし 分譲住宅用地
JR網干駅徒歩圏内の整形地です♪

2026.02.02
姫路市青山3丁目(余部駅)売土地
所在地/兵庫県姫路市青山3丁目18-5
交通/JR姫新線 / 余部駅 徒歩26分 / 播磨高岡駅 徒歩26分 バス20分 青山第2団地前 停歩3分
価格/1,050万円
最適用途/住宅用地(建築条件なし)
現況:月極駐車場
近隣買物施設等、充実しております★
お気軽にお問い合わせください
2026.02.02
姫路市西庄甲(播磨高岡駅)分譲地(11月末頃引渡し予定)
所在地/姫路市西庄甲
交通/JR姫新線 / 播磨高岡駅 徒歩17分
価格/1,471万1,400円
用途地域/第二種中高層住居専用地域
建ぺい率/60%
容積率/200%
設備・条件/個別プロパン・公共下水・公営水道・関西電力
備考/
完成宅地渡し、公簿面積取引となります。
家庭菜園付土地です。
ハザードマップ土砂災害警戒区域(急傾斜地の崩壊)
建築条件なし★

区画図
お気軽にお問い合わせください
2026.02.02
プレステージ姫路栗山町(姫路駅) 中古マンション
所在地/兵庫県姫路市栗山町109番1
交通/JR / 姫路駅 徒歩約19分
価格/1,170万円
管理費/7,900円 / 月 修繕積立金/11,400円 / 月
階数/3階(10階建)
築年月/2000年11月
間取り/2SLDK
駐車場/空有(機械式)
設備特徴/
関西電力 / 都市ガス / 上下水道 / エレベーター / オートロック / 宅配ボックス / カメラ / 食器洗い乾燥機
周辺施設が充実しております★
姫路市役所近く★

お気軽にお問い合わせください
2026.02.02
姫路市町田(余部駅)店舗兼住居用地
店舗兼住居用地【※規模・用途の制限有 従前の敷地の範囲内で従前と同一の用途】
所在地/兵庫県姫路市町田238
交通/JR姫新線 余部駅 徒歩15分
価格/980万円
◇間口がとても広く、視認性も良いので車屋・飲食店・医院等の建替が可能です★
◇現状有姿・公簿面積取引

区画図

現地地図



お気軽にお問い合わせください
2026.02.02
姫路市伊伝居(野里駅)店舗用地
所在地/兵庫県姫路市伊伝居116
交通/JR播但線 / 野里駅 徒歩12分
価格/1,280万円
東南の角地の物件★

区画図





お気軽にお問い合わせください
2025.09.08
姫路市花田町小川(野里駅)工場用地
所在地/姫路市花田町小川594-1
交通/JR播但線 / 野里駅 徒歩31分
価格/8,323万円
地積/3,889.43m²
設備特徴/プロパンガス、電気、上水道、下水道、側溝
備考/建物等を建築する際(使用用途による)は開発許可が必要となります。
工業地域なので工場や配送センター・倉庫・資材置場等に適しています。
お気軽にお問い合わせください
2025.09.08
姫路市飾磨区清水(飾磨駅)3階建 2SLDK 中古一戸建
所在地/姫路市飾磨区清水194
交通/山陽電鉄本線 / 飾磨駅 徒歩4分
価格/3,980万円
チェックポイント!
バス・トイレ
ミストサウナ、浴室暖房、浴室乾燥機、追焚機能、シャワー付洗面化粧台、温水洗浄便座
キッチン
アイランドキッチン、食器洗浄乾燥機、IHクッキングヒーター、グリル
設備・サービス
ウォークインクローゼット、床暖房、シューズインクローゼット、クローゼット、床下収納、モニター付インターホン、ディンプルキー、防犯カメラ、シャッター雨戸、省エネ給湯器、全居室フローリング、室内物干し、上水道、下水道、都市ガス、プロパンガス、電気、エアコン、ルーフバルコニー、人感センサー付照明、間接照明、照明器具、火災警報器(報知機)
南向の住居、更に湯船にゆったり浸かりながら疲れを癒やせる広さ1坪以上の浴室なので、
上質のリラックスタイムが叶います。

間取り

駐車場

廊下

玄関

トイレ
お気軽にお問い合わせください
2025.09.08
姫路市御立中8丁目(売土地)
所在地/兵庫県姫路市御立中8丁目
交通/JR / 姫路駅 バス25分 北山口 停歩5分
価格/1,780万円
区画図
お気軽にお問い合わせください
2025.09.08
姫路市大津区天満(はりま勝原駅)住宅用地
所在地/兵庫県姫路市大津区天満
交通/JR山陽本線 / はりま勝原駅 徒歩1800m(バス 天満西 停歩3分)
価格/300万円
大津イオンまで徒歩約15分なので自転車ですぐ行けます☆

区画図
お気軽にお問い合わせください
2025.09.08
姫路市飾磨区御幸(飾磨駅)住宅用地
所在地/姫路市飾磨区御幸
飾磨幼稚園・小学校近くで買物施設もお近くにあり、便利です♪
お気軽にお問い合わせください
2025.07.14
姫路市砥堀(砥堀駅)中古マンション
所在地/姫路市砥堀
築年月/1998年3月
お気軽にお問い合わせください
2025.05.01
姫路市書写(余部駅)住宅用地(2号地)
所在地/兵庫県姫路市書写
近隣に買い物施設や公園・ゴルフ練習場もありますので住みやすい環境です★
お気軽にお問い合わせください
2025.05.01
姫路市書写(余部駅)住宅用地(1号地)
所在地/兵庫県姫路市書写
近隣に買い物施設や公園・ゴルフ練習場もありますので住みやすい環境です★
お気軽にお問い合わせください
2024.11.27
姫路市青山3丁目(余部駅 )住宅用地
所在地/姫路市青山3丁目
間口広々10m!!
日赤病院まで1.2km。一人暮らしの体調管理も、病院が近いので安心です。買物施設も多数ございます。
お気軽にお問い合わせください
2023.10.06
姫路市田寺4丁目(播磨高岡駅)貸倉庫
所在地/兵庫県姫路市田寺4丁目
倉庫+普通自動車1台、軽1台分の駐車スペース有。
お近くにローソン・業務用スーパーがございます★
2023.09.12
姫路市書写 売土地(建築条件なし)
所在地/兵庫県姫路市書写
ハローズ等の買物施設がお近くにあるので便利です☆
お好みのハウスメーカー・工務店で建築が可能です★
2023.06.13
姫路市勝原区熊見(はりま勝原駅) 住宅用地
所在地/兵庫県姫路市勝原区熊見
東側の姫路市道から宅地内へ下水道管引込工事完了済。
建築条件なし★お好みのハウスメーカー、工務店にて建築が可能です★
2023.03.08
姫路市広畑区西夢前台4丁目(播磨高岡駅)貸店舗
所在地/兵庫県姫路市広畑区西夢前台4丁目
県道沿いで新築テナント募集★視認性良好です♪美容室や学習塾、事務所等に最適です★駐車場4台付★
- 1 / 2
- »

















